* This post contains affiliate links. For more information, please read my affiliate disclosure. *

Last year this time Simon was travelling in Europe and I got started with his list of items needed for College. And here we are – one year later and it is time to do it again, this time for both him and Sidney!
If you missed Simon’s preparation post, here is a quick link: Preparing for College Move In Day.
Preparing for College Move In Day – Again
Back when the kids were really little and people realized how close in age they were, they would usually say something like “two kids in college at the same time!!! That will be rough!!”. We laughed it off, it was so far away! When you are changing diapers and making sure two little ones are fed and happy, it is tough to think about them all grown up and ready for college.
Now we are at that point – yikes!!!
Sidney graduated high school in May and is now ready for the next phase of her life. She is going to Georgia College, Georgia’s Public Liberal Arts University in Milledgeville, Georgia. We’ve visited three times already, including an orientation session just last month. College move in day for her is August 11th.
Simon is going back to Georgia Southern University in Statesboro, Georgia and will be a sophomore student sharing a three-bedroom apartment with two of his friends. He has to be moved in by August 9th and in class on the 10th. At least we can reuse a lot of his first-year items!
In this post though, we are going to focus on planning for Sidney’s move to college.
Planning
Sidney chose her dorm building a while ago and has recently received her room number. She will be rooming with her best friend from high school, and both of them met the other suitemates at the orientation in June. Also in June, these two ladies picked a color scheme, prepared a list of items they would need for their room, and did the first round of shopping by themselves.
The two of us sat down and discussed the remaining items on her list, and put together a final shopping list to get it all done.
Dorm Room Layout
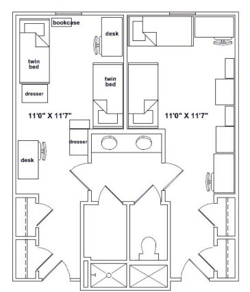
It really helps if you have seen the room before and know exactly where you will be living. If that isn’t possible, then look online for a floorplan. Colleges will also list the furniture that is included and even mail or email you a suggested “what to bring” list.
In Sidney’s room, she will have an extra long twin bed, a desk with a chair, a dresser, a bookcase and a closet. Most freshman students move into suite-style dorm rooms, which in her case means two girls per room, with two rooms sharing a connected bathroom. It is not as bad as it sounds – the bathroom is separated into three areas, so multiple people can use it at once. This is what we are looking at:

The List
We’re going to start with what is needed for the bed.

Sidney loves to shop at Target, so this is where she got her comforter. I found great sheets for my own bed on Amazon years ago and we just continue to buy the same type, in different colors and sizes as needed. I would recommend adding a mattress protector, just for that extra layer of comfort.

The next area we are covering is her desk area. From our room tour, it was obvious that the bookcase can be stacked on top of the desk to save space. The dresser can also fit under the bed. While we will figure furniture placement out on Move In Day, we did pick up some other essentials for her desk area.

The LED lamp is a great option and Sidney picked it for the multiple functions it can perform. Besides the obvious – task lighting – it can also hold her large collection of pens and pencils, as well as provide another charging point for a phone or watch. The seat cushion will just make the chair a bit more comfy to sit on. Clear plastic containers can be used in the desk, dresser or bathroom drawer.

On to the bathroom. Since this is a shared space, the four roommates divided the items needed and our contribution did not include the shower curtain, curtain rod, or bathmats.

We picked a set of white towels (so they can easily be bleached as needed) and it includes two sheet-sized towels and two hand towels. I recommend including a basic laundry basket, which not only can hold your laundry (dirty or clean) but can also be used to carry lots of loose and oddly shaped items on Move In Day. The laundry backpack is a neat addition this year and I’m very interested to see if Sidney will use this or the laundry basket. At least she can carry items in it on Move In Day.

I wrote a whole separate post about putting together the First Aid / Medication Kit. If you want to know more about it, here is the link: First Aid Kit for your College Student. I wanted to include more than just your basic first aid items, but this is a more personal item and will depend on your student’s needs.
Next up – the closet.

The type of closet will also be unique to the college or dorm room. In this case, we are working with two built-in closets, one for each student. The closet itself contains one wire shelf. This is where we wanted to maximise the storage. We got two fabric bins to use on top of the shelf, and they can hold various items that won’t fit in the dresser drawers. A sturdy hanging shelf can be used for a variety of clothing items. The shoe shelf will hopefully keep all the shoes in one area and the door organizer will give her more space to store items she wants to be able to lock away.
Students are allowed to bring a mini-fridge and a microwave. Since whatever we get will have to be packed in a car, driven for two hours and unloaded on the other end, a mini-fridge didn’t make sense. Luckily, they also offer a rental option which is what the girls decided to do.

Here again, the two girls are splitting items and the microwave made it onto Sidney’s list. We have an extra coffee maker, so that is going to Milledgeville too. The rest are all nice to have items that will probably not get as much use as the girls think.

The second to last group is for both general items and some groceries. We included wrinkle spray since I know that will be an easier way to get rid of pesky wrinkles in favorite shirts.

As a special surprise, I will include a small gift box for Sidney to open once we leave to go back home. I like to shop at the local South African store in Buford and will pick up a couple of items from “home” for her to enjoy later.

Soon it will be time to move all these items to Sidney’s new home away from home. Till then, I’m keeping them in two plastic bins and a plastic bag in the foyer. This way, as we buy or add items, we can add to the bins and keep everything together in one spot. Don’t worry, Simon’s college items are also stored in bins. We’re keeping those bins in his room for now.

Are you almost done shopping / collecting for college? What did I forget?
5 thoughts