Our daughter Sidney moved into her college dorm room last week! Yes, within six days we had two college move-ins to help with. We are tired!

Preparing for Move-In Day
As with Simon’s Move-In Day – College Move In Day 2022 (Simon) – we also started preparing lists and bins a couple of months ago. Since Sidney was moving into a dorm room with one of her best friends, they were able to coordinate and discuss their dorm needs ahead of time. They also went to orientation together and met their suitemates. More on their room layout later.
We used our foyer as a holding area for all the bins and items needed for her first year at college. She and Abby also kept a communal list and shopped for some items together. I have a separate post on all the items we needed for Sidney’s freshman year: Preparing for College Move In Day – Again

Planning the Day
Milledgeville is a two-hour drive from home, and for this move-in day, we opted for an early morning drive instead of spending the night. This would allow the pets to stay home and not necessitate another trip to the kennels so soon. Our move-in time slot was between 8 and 9, so if we left home at 6, we should make it just in time.

Packing and Driving to Milledgeville
Of course, that meant we had to have the car packed and ready to go the previous night. Which was easy enough to do. To prepare for Simon’s move-in day, I moved all of his items into the foyer and all of Sidney’s items into Pieter’s office. After we came back from Statesboro, it all moved back into the foyer, and from there it was an easy walk to get it into the car.
I did go back to the car a little later that night to rearrange the items, creating a space for Sidney among the stuff. We wanted to show up at the dorm with only one vehicle, to make parking the car easier for all of us.

We left the house at exactly six in the morning and although we had a bit of traffic around some schools around seven, made it to I-20 right on time. We took a quick break at the rest area, and soon after ran into our first delay – road work. That wasn’t the only road work on the way – the road to Madison, Eatonton and Milledgeville was still under construction and it was a much slower drive than normally. I could also tell we had a lot of parents and students on the road…
Operation Move-In
We made it to the dorm area at 8:30 and got caught up in the first line of cars. After going around the block, we were directed to park in front of Adams Hall and unload all of Sidney’s items onto the sidewalk area. I started unloading the car while Sidney checked in. Pieter came back to help after parking Sidney’s car a bit out of the way.

From the sidewalk, Cat Crew members – fellow student volunteers – collected all the items and helped you carry them to your room. Before we could start moving items in, we had to complete the dorm room inspection sheet first.
The Dorm Room
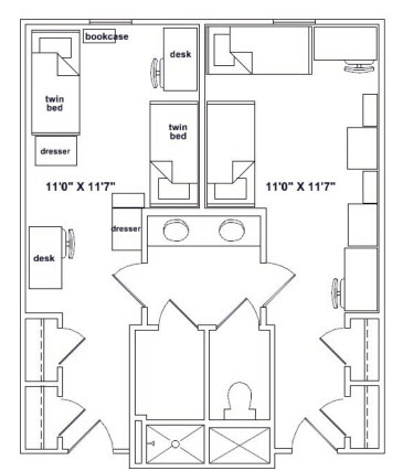
All college dorms are a little bit different from each other. While Simon had a two-bedroom, two-bathroom type of apartment, Sidney had a two-bedroom suite. The two bedrooms were connected by a bathroom, which all four girls had to share.
All furniture was included and the room had two beds, two dressers, two desks, two bookcases and two chairs. The girls also rented a mini-fridge, which automatically came with a microwave. Towards the entrance to the room were two lockable closets, one for each girl.

The bathroom was separated into three areas. Two sinks in the hallway between bedrooms, with a separate toilet room and a separate shower room. Both were very spacious and offered a lot of additional storage space.

Unpacking
After checking all the items on the inspection sheet, we started moving things into the room. Some were already brought up by the Cat Crew, but a lot of Sidney’s items were still downstairs. We did a couple of trips down and back up to the fourth floor, every time bringing another item up. Let me just say I am in terrible shape and it didn’t take long before I felt like the stairs were trying to kill me.
We started with getting the furniture into place. Once that was done, I made Sidney’s bed, giving her that one organized spot in the room. Before long, Sidney’s roommate and her family showed up and we were all unpacking and moving items around at the same time.

Breakfast
To give Abby and her family some space, we headed out for breakfast. We walked to where Pieter parked our car and then drove to the downtown area and The Local Yolkal Cafè. We only waited 15 minutes for a table. Once seated, we enjoyed the cool air and hot coffee before ordering our breakfast/brunch items. My veggie omelette was delicious!

More Unpacking & The Drive Back Home
After breakfast, we headed back to the dorm to finish unpacking. By this time, Abby and her family have left for breakfast and we had some space to work and get items unpacked. Snacks went into bins, clothes and shoes into the dresser and closet, and random items were grouped together in other bins in the desk or bookcase. Pieter helped with getting devices on the wi-fi network and getting artwork up on the wall.

Since we had another two-hour drive ahead of us, we said our goodbyes and left Sidney to unpack the rest of her items by herself. A couple of items had to go back with us, including the new microwave and a duffle bag. This time we took the elevator down… Google maps suggested a different route back home and we were soon leaving the green farmland behind for the hustle and bustle of the suburbs.

Takeaways
Again, I was reminded that I cannot plan for every minute of a college move-in day. What will be will be. What caught us a bit off guard is the number of loose items that made it into the car. In hindsight, those should also have been in a bin or even better, in a bag with wheels. And yes, there was an elevator, but as you can imagine, it was very popular and hot. Taking the stairs took a toll but was also not too bad in the end.


